Espace propriétaire
fr
Se connecter
Se connecter

Votre recherche

Nouveauté
Nîmes (30900)

6 pièces - 200 m²

A VENDRE NIMES CARREAU DE LANES MAISON 5 CHAMBRES

550 000 €
Ref : 5911
A propos de ce bien

L’AGENCE MONTAURY IMMOBILIER vous propose à la vente cette agréable villa de 1994, implantée sur une superbe parcelle arborée de 2 676 m².

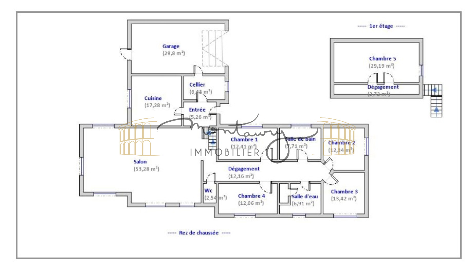
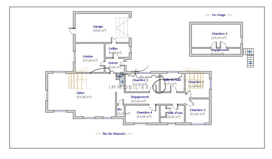
D’une surface d’environ 200 m², cette maison offre de beaux volumes avec un espace de vie lumineux de 57 m² agrémenté d’une cheminée. La cuisine indépendante peut facilement être ouverte sur la salle à manger pour créer une pièce de vie encore plus conviviale.

Le rez-de-chaussée dispose de 4 chambres ainsi que de 2 salles de bains/douche. À l’étage, une grande chambre supplémentaire vient compléter l’ensemble.

Un garage attenant de 30 m² apporte un confort supplémentaire.

Située dans un environnement calme et recherché, cette propriété séduit par son jardin plat et arboré ainsi que par son fort potentiel et ses volumes généreux.

Les informations sur les risques auxquels ce bien est exposé sont disponibles sur le site : www.georisques.gouv.fr

Descriptif de ce bien
Général
Code postal 30900
surface terrain 2 676 m²
Surface loi Carrez (m²) 193,71 m²
Nombre de chambre(s) 5
Nombre de pièces 6
Nombre de niveaux 2
Vue Jardin / sans vis-à-vis
Détails
Nb de salle de bains 1
Nb de salle d'eau 1
Cuisine Séparée
Mode de chauffage Climatisation, Electrique, Bois
Type de chauffage Air pulsé, Panneaux rayonnant, Cheminée
Format de chauffage Individuel, Individuel, Individuel
Nombre de garage 1
Exposition Sud
Année de construction 1994
Quartier CARREAU DE LANES
Terrain piscinable OUI
Terrain arboré OUI
Composition
Rez de chaussée
entrée 4.68 m²

salon/sejour 57.55 m²

cuisine 17.3 m²

cellier 7.8 m²

WC 2.45 m²

chambre 12.18 m²

chambre 12.44 m²

chambre 13.85 m²

chambre 12.04 m²

salle de bain 7.72 m²

salle d'eau 6.56 m²

garage 30 m²

Etage 1
mezzanine 32.62 m²

Financier
Prix de vente 550 000 €
Les honoraires d'agence seront intégralement à la charge du vendeur  
Taxe foncière annuelle 2 742 €
Energie
DPE GES
Autour du bien
  • Commerces et santé
  • Loisirs
  • Ecoles
  • Transports
  • Pratique
Contacter pour ce bien
L'agence
Téléphone 04 66 04 29 60
Adresse
60 avenue Georges Pompidou - 30000 Nîmes

* Champ obligatoire

Les informations recueillies sur ce formulaire sont enregistrées dans un fichier informatisé par La Boite Immo agissant comme Sous-traitant du traitement pour la gestion de la clientèle/prospects de l'Agence / du Réseau qui reste Responsable du Traitement de vos Données personnelles. La base légale du traitement repose sur l'intérêt légitime de l'Agence / du Réseau. Elles sont conservées jusqu'à demande de suppression et sont destinées à l'Agence / au Réseau. Conformément à la loi « informatique et libertés », vous disposez des droits d’accès, de rectification, d’effacement, d’opposition, de limitation et de portabilité de vos données. Vous pouvez retirer votre consentement à tout moment en contactant directement l’Agence / Le Réseau. Consultez le site https://cnil.fr/fr pour plus d’informations sur vos droits. Si vous estimez, après avoir contacté l'Agence / le Réseau, que vos droits « Informatique et Libertés » ne sont pas respectés, vous pouvez adresser une réclamation à la CNIL. Nous vous informons de l’existence de la liste d'opposition au démarchage téléphonique « Bloctel », sur laquelle vous pouvez vous inscrire ici : https://www.bloctel.gouv.fr Dans le cadre de la protection des Données personnelles, nous vous invitons à ne pas inscrire de Données sensibles dans le champ de saisie libre.
Ce site est protégé par reCAPTCHA, les Politiques de Confidentialité et les Conditions d'Utilisation de Google s'appliquent.

Découvrir nos outils